- Puutarha- ja ulkotuotteet
- Työkalut ja laitteet
- Kylpyhuonekalusteet
- Joululahjaideoita
- Ovet ja portit
- Kasvihuone
- Urheilu ja vapaa-aika
- Varaston tyhjennys
- Ikkunat
- Treenivälineet
- Vajat ja mökit rakennussarjoina
- Koti & sisustus
- Asuminen ja rakentaminen
- Auto & autotallit
- Tarjoukset
- Uudet tuotteet
- Outlet
- Kaikki tuotteet
- Tuotemerkit
Attefall-talo Gunvald B - 20,5 m²
Alkaako tila loppua ja haluat laajentaa toimintaansa käytännöllisesti ja joustavasti? Kenties kiinteistön vierasmökki, piharakennus, varasto tai omakotitalo teini-ikäisille lapsille? Omakotitalo voi toimia hyvin myös esimerkiksi siirtomaa- tai kesämökiksi. Tämä on mahdollista omakotitalomääräysten ansiosta, jotka mahdollistavat vapaan määrän enintään 25 neliömetrin omakotitaloja yhden tai kahden asunnon täydennykseksi. Muista vain, että harjanteen korkeus ei saa ylittää 4 metriä. Toisin kuin friggebodar, attefallhusia ei voida käyttää vain täydentävänä rakennuksena, vaan se voidaan myös kalustaa ja käyttää itsenäisenä asuinpaikkana. Voit vapaasti tarkistaa asuntoviranomaiselta hylättyjä taloja koskevista lisämääräyksistä.
Valmiina koottavaksi:
Tämä suojatalo toimitetaan valmiina rakennussarjana ja on helppo koota oheisen piirustuksen mukaan. Ohjaamon suunnittelu ja rakenne tekevät siitä sekä helpon koottavan että vakaan. Kaikki materiaali toimitetaan käsittelemättömänä, on suositeltavaa käsitellä varhain perusöljyllä, ulkopohjamaalilla tai pintamaalilla. Mukana kaikki asennukseen tarvittava eli naulat, ruuvit yms.
Katto & lattia:
Katto ja lattia koostuvat 18 mm raakalevystä, tämä sisältyy pakkaukseen. Mukana on myös käsitellyt kantonauhat säätiötä varten. Pohja on tehtävä itse, materiaalit eivät sisälly tähän. Perustuksen teko riippuu maaperän olosuhteista, talon ulkonäöstä ja siitä, mitä haluat. Voidaan valaa joko laatta tai käyttää sokkelipohjaa esimerkiksi puutarhalaattojen tai kevyiden klinkkeripalojen päälle.
Katon pinnoite:
Kattopinnoite ei sisälly hintaan, mutta on valittavissa.
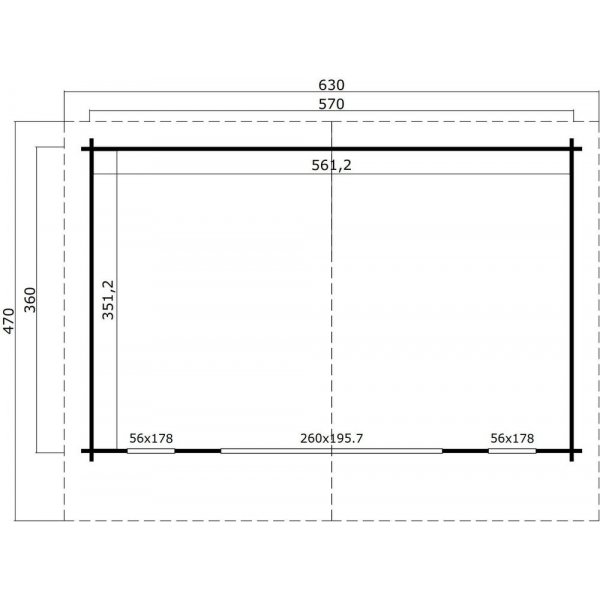
Mitat ja tekniset tiedot:
- Materiaali: Pohjolan kuusi
- Seinän paksuus: 44 mm
- Huoneiden lukumäärä: 1
- Hoito: Hoitamaton
- Vakiomitat: 380 x 590 cm
- Seinän mitat: 360 x 570 cm
- Perustuslevyjen mitat: 45x70 mm
- Pinta-ala: 19,71 m²
- Tilavuus: 44,38 m³
- Seinän korkeus: 210,9 cm
- Huipun korkeus: 239,4 cm
- Katon ylitys: 30 cm
- Kattolaudat: 18x90 mm
- Katon pinta-ala: 19,84 m²
- Katon kaltevuus: 3,7°
- Lattialautojen mitat: 18x90 mm
- Ovet:
- Oven tyyppi: Taitto-ovi
- Määrä: 1 kpl
- Oven mitat: 2600 x 1957 mm
- Ikkunatyyppi: Yksi ikkuna, avautuu sisäänpäin
- Ikkunoiden lukumäärä: 2 kpl
- Ikkunan mitat: 560 x 1780 mm
- Edulliset hinnat ja laaja valikoima
- Vain laadukkaita tuotteita!
- Maksa 14 päivää toimituksen jälkeen ilman lisämaksua!
- Nopea toimitus!
- Erinomainen asiakaspalvelu!
- Asiantunteva ja avulias asiakaspalvelumme auttaa sinua ja vastaa kaikkiin ostoosi liittyviin kysymyksiin!
Liittymällä jäseneksi hyväksyt Freddytalo.fi Tietosuojakäytäntö.
















