- Puutarha- ja ulkotuotteet
- Työkalut ja laitteet
- Kylpyhuonekalusteet
- Joululahjaideoita
- Ovet ja portit
- Kasvihuone
- Urheilu ja vapaa-aika
- Varaston tyhjennys
- Ikkunat
- Treenivälineet
- Vajat ja mökit rakennussarjoina
- Koti & sisustus
- Asuminen ja rakentaminen
- Auto & autotallit
- Tarjoukset
- Uudet tuotteet
- Outlet
- Kaikki tuotteet
- Tuotemerkit
Attefall-talo Uno 380 - 18,24 m²
Attefallshus Uno 380 on perinteisesti suunniteltu jalokivi, jossa on puusolmuja ja yksinkertaisia yksityiskohtia, kuten tuulilasin harjakoriste tai ikkuna- ja ovisäleet, jotka yhdessä lisäävät viehätystä. Pariovi antaa sinulle mahdollisuuden avautua ja päästää sisään sekä valoa, ilmaa että luontoa. Tässä ihastuttavassa mökissä on 18,24 neliömetrin huone, joka toimii loistavasti lisätilaksi vieraille tai ulkorakennukseksi, varastoksi tai studioksi.
Taloa kosteudelta suojaamiseksi on hyvä asentaa kattoon viemäröinti paikkaan, jossa sade ohjataan poispäin talosta. Saatavilla lisävarusteena ostovalikossa.
Voit laittaa taloon oman leiman valitsemalla kattopäällysteen ja julkisivun värit. Mökki toimitetaan käsittelemättömänä.
Omakotitalomääräysten ansiosta yksi- tai kaksikerroksisen talon täydennykseksi saa rakentaa mitä tahansa enintään 30 neliömetrin suuruisia omakotitaloja. Muista vain, että harjanteen korkeus ei saa ylittää 4 metriä. Toisin kuin friggeboden, liitettyjä taloja ei voida käyttää vain täydentävänä rakennuksena, vaan niitä voidaan myös kalustaa ja käyttää itsenäisinä asuina. Voit vapaasti tarkistaa asuntoviranomaiselta hylättyjä taloja koskevista lisämääräyksistä.
Valmiina koottavaksi
Tämä suojatalo toimitetaan valmiina rakennussarjana ja on helppo koota oheisen piirustuksen mukaan. Vaihtoehtoisesti voit palkata käsityöläisen. Ohjaamossa on oksainen puurakenne ja -rakenne, mikä tekee siitä sekä helpon koottavan että vakaan. Kaikki materiaali toimitetaan käsittelemättömänä, on suositeltavaa käsitellä varhain perusöljyllä, ulkopohjamaalilla tai pintamaalilla. Mukana kaikki asennukseen tarvittava eli naulat, ruuvit yms.
Katto/lattia ja perustus
Katto ja lattia ovat 18 mm raakalevyä. Lattiat eivät sisälly pakkaukseen, mutta ne ovat saatavana lisävarusteena. Pohja on tehtävä itse, materiaalit eivät sisälly tähän. Perustuksen teko riippuu maaperän olosuhteista, talon ulkonäöstä ja siitä, mitä haluat. Voidaan valaa joko laatta tai käyttää sokkelipohjaa esimerkiksi puutarhalaattojen tai kevyiden klinkkeripalojen päälle.
Materiaalit & mitat
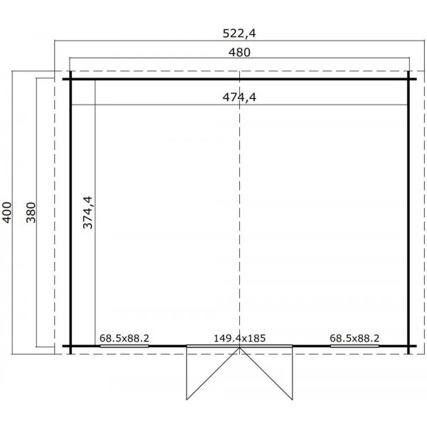
Materiaali: Pohjolan kuusi
Pinta-ala : 17,76 m²
Seinän paksuus: 28 mm
Ulkoseinän mitat: 480x380 cm
Piipun korkeus: 256,5 cm
Seinän korkeus: 193,8 cm
Katon ylitys: 10 cm
Katon pinta-ala: 21,6 m²
Katon kaltevuus: 14,7°
Ikkunat: 2 x ikkunaa (685 x 882 mm), 1-lasi, sisäänpäin aukeava kallistustoiminto
Pariovet : 1 x 1494 x 1850 mm. Valmistettu massiivikuusta alumiinikynnyksellä, sis. lukkosylinteri ja kahva
Näin käsittelemme asiakasarvosteluja:
Varmistamme, että tuotearvostelut ovat peräisin todellisilta asiakkailta seuraavan prosessin avulla:
Jokaisen toimitetun tilauksen jälkeen lähetämme asiakkaalle sähköpostitse yksilöllisen linkin. Tämän linkin kautta asiakas voi arvostella vain kyseiseen tilaukseen kuuluneet tuotteet – muita tuotteita ei voi arvostella samalla linkillä. Arvostelusivulla asiakkaalla on myös mahdollisuus arvioida meitä jälleenmyyjänä. Tämä menetelmä takaa, että kaikki arvostelut ovat asiakkailta, jotka ovat todella ostaneet ja vastaanottaneet arvostelemansa tuotteet.
Arvostelujen julkaiseminenJulkaisemme kaikki arvostelut, jotka noudattavat ohjeitamme, riippumatta annetusta arvosanasta. Tämä tarkoittaa, että sekä positiiviset että negatiiviset mielipiteet näytetään, kunhan ne eivät sisällä sopimatonta kieltä, henkilökohtaisia hyökkäyksiä tai ole asiattomia.
Arvosteluja, jotka koskevat pelkästään toimitusongelmia (esim. viivästyksiä), ei julkaista tuotesivulla, koska ne eivät arvioi itse tuotetta. Tällaiset kommentit voi kuitenkin jättää arvioidessaan meitä jälleenmyyjänä.
Keskimääräisen arvosanan laskeminenTuotteen keskimääräinen arvosana näytetään kyseisen tuotteen kaikkien julkaistujen arvostelujen keskiarvona.
Lue lisää- Edulliset hinnat ja laaja valikoima
- Vain laadukkaita tuotteita!
- Maksa 14 päivää toimituksen jälkeen ilman lisämaksua!
- Nopea toimitus!
- Erinomainen asiakaspalvelu!
- Asiantunteva ja avulias asiakaspalvelumme auttaa sinua ja vastaa kaikkiin ostoosi liittyviin kysymyksiin!
Liittymällä jäseneksi hyväksyt Freddytalo.fi Tietosuojakäytäntö.














